Wykończony Dom w pobliżu os. Borek

Dom (Wolnostojący) na sprzedaż
1 350 000,00 PLN , Pow. 120,69 m2
Drukuj ofertę
Drukuj ofertę
Typ nieruchomości:
Dom
Powierzchnia:
120,69 m2
Typ transakcji:
sprzedaż
Liczba pokoi:
4
Lokalizacja:
Długie
Rok budowy:
2024
Liczba pięter:
1
Numer oferty:
509737
Powierzchnia działki:
691 m2
Cena za m2:
11 185,68 PLN
Oferta dostępna wyłącznie za pośrednictwem Franczewska Nieruchomości.

Na sprzedaż nowy dom parterowy z 2024 roku gotowy do zamieszkania. Nowoczesne wykończenie oraz bliskość Lublina i Turki czynią tę nieruchomość idealną dla osób szukających komfortu, przestrzeni i spokoju, nie rezygnując przy tym z szybkiego dostępu do miasta. Dom nie wymaga żadnych dodatkowych nakładów finansowych -To idealna propozycja dla rodziny ceniącej komfort, prywatność i spokój.

Szczegóły:
Dom o powierzchni 120,69 m² został wybudowany według projektu „Dom w kosaćcach 2 (GN) " na działce o powierzchni 691 m² . Nieruchomość ogrzewana elektrycznie (ogrzewanie podłogowe z możliwością sterowania z telefonu ) oraz kominkiem tradycyjnym. Dom podłączony do sieci wodociągowej i kanalizacyjnej

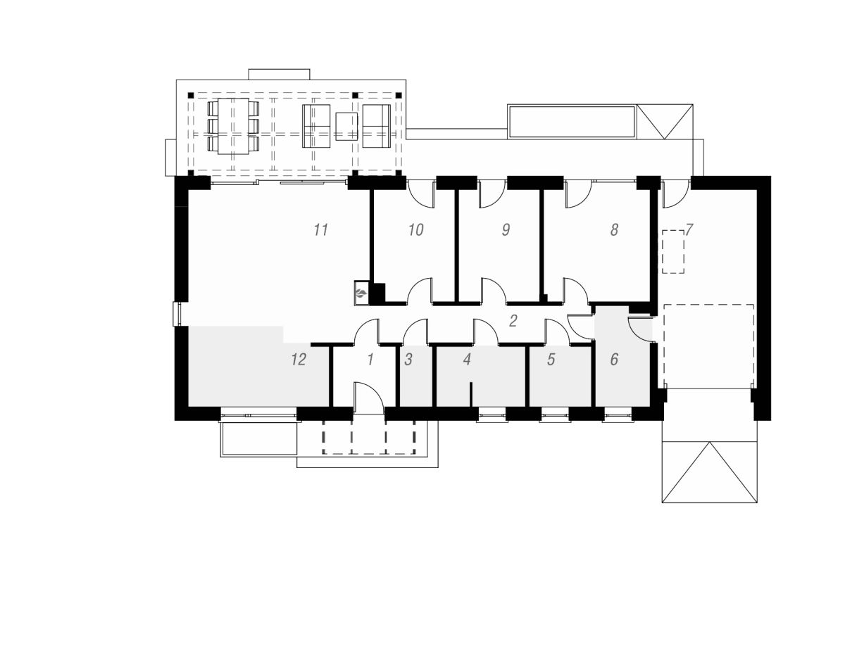
Zestawienie powierzchni:
1. Wiatrołap 3,92 m²
2. Korytarz 8,56 m²
3. Toaleta 2,02 m²
4. Łazienka 5,51 m²
5. Pralnia 3,88 m²
6. Kotłownia 5,60 m²
7. Garaż w bryle budynku 20,87 m²
8. Sypialnia 12,53 m²
9. Pokój I 9,54 m²
10. Pokój II 9,31 m²
11.Salon 27,83  m²
12. Kuchnia 11,12  m²

Standard wykonania:
-dom wybudowany technologią tradycyjną - konstrukcja murowana z bloczków gazobetonowych Solbet
 -dach pokryty blachą na rąbek
-dom ocieplony styropianem grafitowym  20 cm 
- strop ocieplony pianą PUR 20 cm 
- strop Teriva
- okna pcv
- tynki gipsowe
- rolety zewnętrzne z możliwością sterowania przez telefon
- drzwi wewnętrzne z ukrytą ościeżnicą
- gres drewnopodobny na całej powierzchni domu 
- uzdatniacz wody

Działka i otoczenie:
-wymiary działki 18m x 38,4 m
-taras oraz opaska wokół domu wyłożone kostką brukową
-dojazd utwardzoną drogą 

Lokalizacja:
-Długie (gmina Wólka) powiat lubelski, województwo lubelskie
-bliska odległość Osiedla Borek we wsi Turka
- nowe Osiedle domów jednorodzinnych
- w pobliżu: Sklepy, Szkoły i Przedszkola, Restauracja, Apteka, Lokale usługowe
- łatwy wyjazd na obwodnicę

CENA : 1 350 000 PLN
* jeśli potrzebujesz pomocy eksperta w dobraniu finansowania zakupu nieruchomości, skontaktuj się z opiekunem oferty

Ofertę przygotowała i prezentuje:
Aleksandra Wójtowicz- Hunek
Licencjonowany pośrednik nieruchomości
Franczewska Nieruchomości

Zapraszam do kontaktu oraz na prezentację nieruchomości!

Treść niniejszego ogłoszenia nie stanowi oferty handlowej w rozumieniu Kodeksu Cywilnego, ale jest zaproszeniem do współpracy. Dokładamy wszelkich starań, aby każda z ofert była rzetelnie sprawdzona oraz aktualna.
W ofercie nie są przedstawione koszty obsługi transakcji, która wykonywana jest w profesjonalny sposób i zapewnia Państwu pełne bezpieczeństwo. Więcej unikalnych ofert w podobnych kryteriach znajdą Państwo na naszej stronie.


Nieprawidłowy adres E-mail