Lokal handlowo/usługowy 950 m2

Lokal handlowy/usługowy na sprzedaż
3 200 000,00 PLN , Pow. 950 m2
Drukuj ofertę
Drukuj ofertę
Typ nieruchomości:
Komercyjny
Powierzchnia:
950 m2
Typ transakcji:
sprzedaż
Liczba pokoi:
14
Lokalizacja:
Kraśnik
Rok budowy:
1991
Piętro:
0 na 0
Numer oferty:
396051
Cena za m2:
3 368,42 PLN
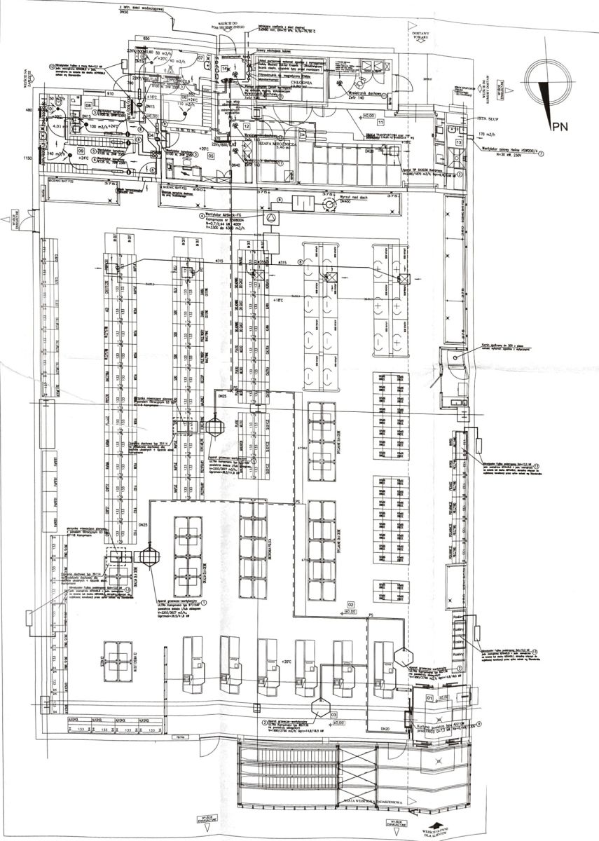
Na sprzedaż lokal handlowo-usługowy o powierzchni 950 m² na działce o powierzchni 2071 m2 (nr działki 695/150) w Kraśniku przy Al. 1000-lecia 9. Lokal z bezpośrednim wejściem z ulicy, co zapewnia doskonałą widoczność i dostępność dla klientów. Witryny wystawowe umożliwiają efektowną prezentację oferty.

Standard lokalu:
- Witryny wystawowe
- Możliwość aranżacji wnętrza według potrzeb najemcy
- Ogrzewanie: miejskie
- Klimatyzacja
- Wentylacja mechaniczna
- Dostawy od cz. magazynowej z rampą
- Wysokość: 330cm

Układ lokalu:
1 Przedsionek 9,94 m2
2 Sala Sprzedaży 746,74 m2 (wymiary 33m x 24,5m)
3 Strefa Wyjścia 47,55 m2
4 Komunikacja 8,69 m2 m2
5 Pom. Kierownika 13,81 m2
6 Szatnia Męska 7,51 m2
7 WC Męskie 6,18 m2
8 Pom. Socjalne 7,98 m2
9 Szatnia Damska 10,20 m2
10 WC Damskie 4,01 m2
11 Komora Dostaw 73,11 m2
12 Magazyn 6,34 m2
13 Pomieszczenie Mycia Wózków 4,94 m2
14 Węzeł Cieplny 3,85 m2

RAZEM: 950,85 m2 

Podana cena jest ceną netto.
Możliwość wynajęcia tej nieruchomości.

Media:
- Prąd 
- Woda 
- Ogrzewanie miejskie 

Pomagamy przy uzyskaniu finansowania komercyjnego oraz preferencyjnych funduszy unijnych. Zapewniamy kontakty do projektantów, architektów, geodetów, doradców podatkowych, notariuszy, ekip remontowych i wielu innych sprawdzonych specjalistów.

Ofertę przygotował i prezentuje:
Marek Kiciński
Pośrednik w obrocie nieruchomościami
Franczewska Nieruchomości

Zapraszam do kontaku i na prezentację!

Treść niniejszego ogłoszenia nie stanowi oferty handlowej w rozumieniu Kodeksu Cywilnego, ale jest zaproszeniem do współpracy. Zespół ekspertów z Franczewska Nieruchomości dokłada starań, aby każda z ofert była rzetelnie sprawdzona oraz aktualna. Jako agencja nieruchomości pobieramy za usługę pośrednictwa wynagrodzenie. Usługa jest wykonywana w profesjonalny sposób i zapewnia Państwu pełne bezpieczeństwo. Więcej unikalnych ofert w podobnych kryteriach znajdą Państwo na naszej stronie.
Nieprawidłowy adres E-mail