Lokal na wynajem

Lokal handlowy/usługowy na wynajem
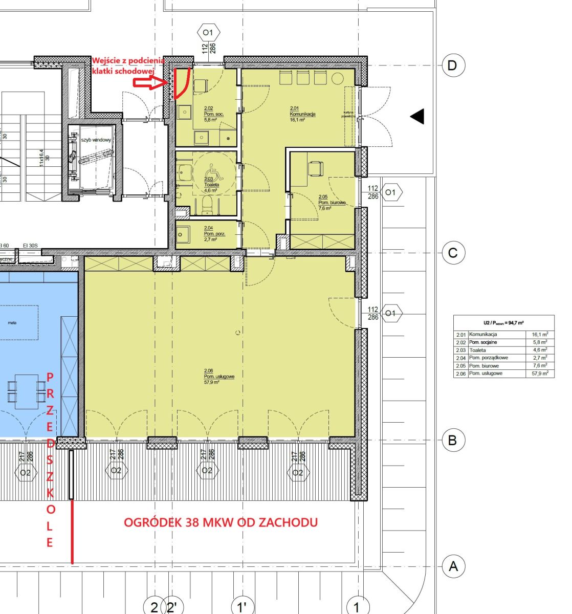
8 000,00 PLN , Pow. 95 m2
Drukuj ofertÄ™
Drukuj ofertÄ™
Typ nieruchomości:
Komercyjny
Powierzchnia:
95 m2
Typ transakcji:
wynajem
Liczba pokoi:
2
Lokalizacja:
Lublin
Rok budowy:
2025
Piętro:
0 na 5
Numer oferty:
369450
Cena za m2:
84,21 PLN
Na wynajem lokal użytkowy w Lublinie przy ul Wolińskiego 35 o pow. ok 95 m2 z witrynami. Lokal w stanie deweloperskim o układzie open space do własnej aranżacji (możliwość postawienia ścianek działowych przez dewelopera).
Lokal posiada 2 wejścia oraz ogródek o powierzchni 38 m2 od strony zachodniej, do lokalu przynależą dwa miejsca postojowe zewnętrzne przed lokalem.
Lokal idealny na potrzeby działalności z branży beauty, handlowej, biurowej, usługowej czy siedzibę firmy.
Odbiór lokalu luty/marzec
-Ogrzewanie miejskie
-Lokal zostanie wyposażony w instalację pod klimatyzację
-Kaucja do uzgodnienia
-Okres najmu do uzgodnienia
-Czynsz najmu 8.000 zł netto
-Dodatkowo możliwość wynajęcia 2 miejsc postojowych w hali garażowej 

Ofertę przygotował i prezentuje: Marek Kiciński
Franczewska Nieruchomości

Pomagamy przy uzyskaniu finansowania komercyjnego oraz preferencyjnych funduszy unijnych. Zapewniamy kontakty do projektantów, architektów, geodetów, doradców podatkowych, notariuszy, ekip remontowych i wielu innych sprawdzonych specjalistów.

Zapraszam do kontaktu i na prezentację nieruchomości!

Treść niniejszego ogłoszenia nie stanowi oferty handlowej w rozumieniu Kodeksu Cywilnego, ale jest zaproszeniem do współpracy. Zespół ekspertów z Franczewska Nieruchomości dokłada starań, aby każda z ofert była rzetelnie sprawdzona oraz aktualna. Jako agencja nieruchomości pobieramy za usługę pośrednictwa wynagrodzenie. Usługa jest wykonywana w profesjonalny sposób i zapewnia Państwu pełne bezpieczeństwo. Więcej unikalnych ofert w podobnych kryteriach znajdą Państwo na naszej stronie.
Nieprawidłowy adres E-mail