3 pokoje blisko Zalewu Zemborzyckiego

Mieszkanie na sprzedaż
497 053,00 PLN , Pow. 44,36 m2
Drukuj ofertę
Drukuj ofertę
Typ nieruchomości:
Mieszkanie
Powierzchnia:
44,36 m2
Typ transakcji:
sprzedaż
Liczba pokoi:
2
Lokalizacja:
Lublin
Rok budowy:
2026
Piętro:
1 na 5
Numer oferty:
837632
Cena za m2:
11 204,98 PLN
2-pokojowe mieszkanie z miejscem postojowym | Wrotków, Lublin

Na sprzedaż jasne i funkcjonalne mieszkanie o powierzchni użytkowej ok. 44,36 m², położone na 1. piętrze w 5-piętrowym budynku na lubelskim Wrotkowie. Idealne dla pary, singla lub jako inwestycja pod wynajem.

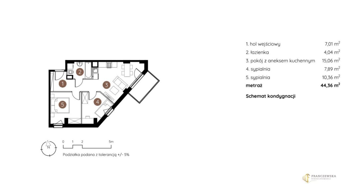
Układ pomieszczeń:
-Pokój dzienny z aneksem kuchennym - 15,06 m² z balonem o pow. 4,5 m2 
Przestronny salon z dużymi oknami
- Sypialnia - 7,89 m²
- Sypialnia - 10,36  m²
- Łazienka - 4,02 m²
- Przedpokój - 4,17 m²
Możliwość dokupienia zewnętrznego miejsca postojowego - 15 000 zł lub podziemnego w cenie 30 000 zł

Termin realizacji: IV kw. 2027

Udogodnienia:
- zielone pergole, strefa relaksu z hamakami i szachami,
- nowoczesny budynek z windą z komfortowy układ pomieszczeń
- duże przeszklenia i świetne doświetlenie dzięki wysokim oknom portfenetrowym
- spokojne, zielone otoczenie:
- pakiet antysmogowy
-stacja ładowania samochodów elektrycznych
- rowerowania i stojaki na rowery
- blok ogrodzony
- system Smart home- dodatkowo płatny

Media:
- ogrzewanie i ciepła woda z sieci miejskiej

Lokalizacja:
Mieszkanie znajduje się w spokojnej i rozwijającej się części Wrotkowa, z szybkim dojazdem do centrum. W pobliżu:
- sklepy, punkty usługowe, przystanki MPK
- tereny zielone, ścieżki spacerowe i rekreacyjne
- Zalew Zemborzycki pieszo w zasięgu kilku minut
- Najbliższy przystanek - 120 metrów od inwestycji
*jeśli potrzebujesz pomocy eksperta w dobraniu finansowania zakupu nieruchomości, skontaktuj się z opiekunem oferty.

Ofertę przygotował/a i prezentuje:
Patrycja Czarnik 791689906
Licencjonowany Pośrednik Nieruchomości
Franczewska Nieruchomości

Zapraszam do kontaktu oraz na prezentację nieruchomości!

Treść niniejszego ogłoszenia nie stanowi oferty handlowej w rozumieniu Kodeksu Cywilnego, ale jest zaproszeniem do współpracy. Dokładamy wszelkich starań, aby każda z ofert była rzetelnie sprawdzona oraz aktualna. Więcej unikalnych ofert w podobnych kryteriach znajdą Państwo na naszej stronie.

Nieprawidłowy adres E-mail